Beschrijving
****Prefer English? – Scroll down!****
Op loopafstand van de Gaasperplas gelegen, strak en modern 3-kamerappartement van ca76m2 met een zonnig balkon, berging en eigen parkeerplaats in de nabij gelegen afgesloten parkeergarage! De erfpacht is eeuwigdurend afgekocht!
Omgeving:
Het appartementencomplex ligt midden in het groen aan de Gaasperplas en je bent binnen een mum van tijd in de binnenstad van Amsterdam. De buurt Nellestein is bijna geheel omsloten door de Gaasperplas en het Gaasperpark. Doordat dit complex bijna direct grens aan de Gaasperplas kun je iedere dag volop recreëren. Zo is er een jachthaventje, een watersportvereniging en zandstrand. Verder zijn alle denkbare voorzieningen zoals winkels, scholen, kinderopvang, een buurthuis en gezondheidscentrum binnen handbereik. Het autoluwe karakter en de vele speelpleintjes maken de buurt kindvriendelijk. Ben je een fietsliefhebber? Met de fiets ben je zo in de uitlopers van het Gooi.
Nellestein ligt ook ideaal voor iemand die veel met de auto moet reizen. Vanaf een eigen parkeerplek in een overdekte parkeergarage zijn de snelwegen, A1, A2, A9 en A10 te bereiken. Ook het openbaar vervoer is prima geregeld en op loopafstand gelegen (bus en metro). Met de metro ben je zo in de binnenstad van Amsterdam en het NS station Bijlmer Arena is daarnaast snel met de bus bereikbaar.
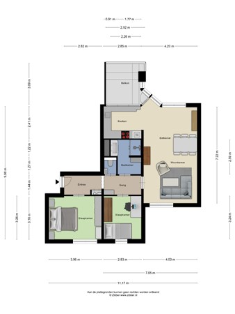
Indeling
Begane grond:
Gemeenschappelijke en nette entree met brievenbussen, bellentableau, lift en trapopgang.
Derde verdieping:
Entree middels de brede hal met video-intercom en meterkast. Vanuit de hal is er toegang tot nagenoeg alle vertrekken.
De doorzonwoonkamer beschikt over grote raamkozijnen die zorgen voor een overvloed aan daglicht. Vanuit de woonkamer is er toegang tot de halfopen keuken uitgevoerd in U-opstelling. De keuken is modern, met een keramisch keukenblad afgewerkt en beschikt over alle hedendaagse apparatuur, waaronder: een handige Quooker, Bosch combi-oven, Bosch inductiekookplaat, Bosch design afzuigkap, Siemens koelkast, vriezer en Siemens vaatwasser. Vanuit de woonkamer is er aan de achterzijde toegang tot het op het zuiden gelegen balkon. Op het balkon is het heerlijk toeven van 's-morgens vroeg tot in de namiddag van een hapje en/of drankje in de zon!
Aan de voorzijde van het appartement is er vanuit de hal toegang tot twee goed bemeten slaapkamers, de badkamer en toiletruimte. De badkamer is praktisch ingedeeld en kent een hoog afwerkingsniveau. Zo beschikt de badkamer over een inloopdouche met stort- en handdouche, breed wastafelmeubel met twee mengkranen, een spiegel met led verlichting en een was hoek voorzien van wasmachine- en droger aansluiting. De toiletruimte kent eenzelfde moderne en tijdloze stijl en beschikt over een wandcloset met fontein. De doorgelegde pvc vloer, uitgebreide groepenkast, waterontharder, nieuwe opdekdeuren met zwart deurbeslag, gestuukte wanden en plafonds maken dit appartement af.
Kortom; dit is een woning van het kaliber dozen uitpakken en wonen maar!
Berging en parkeerplaats:
Op de begane grond van het complex bevindt zich de bijbehorende eigen berging van ca. 4m2. Ideaal voor het stallen van spullen of fietsen. In de nabijgelegen en afgesloten parkeergarage bevindt zich op de inrijverdieping een eigen parkeerplaats nr 136.
Bijzonderheden
• Bouwjaar 1980
• Woonoppervlakte ca. 76 m2
• Gelegen op de 3e verdieping
• Moderne badkamer en toiletruimte voorzien van luxe sanitair
• Luxe keuken voorzien van A-klasse apparatuur
• Gestuukte en gesausde wanden en plafonds
• Fraaie opdekdeuren v.v. zwart deurbeslag
• Erfpachtcanon eeuwigdurend afgekocht
• Eigen parkeerplaats op de inrijverdieping van de parkeergarage
• Eigen berging in onderbouw
• Lift en video-intercom aanwezig
• Verwarming en warm water middels cv-ketel; Intergas bouwjaar 2011
• Balkon gelegen op het zuiden
• Gunstige ligging in de wijk t.o.v. de Gaasperplas
• De VvE wordt professioneel beheerd
• Servicekosten appartement € 307,57 p/mnd en parkeerplaats € 22,47 p/mnd
• De koopakte wordt bij Nva notaris getekend
• Niet-zelfbewoningsclausule is van toepassing
• Energielabel C (het een lage label C (bijna B), na de verduurzamingsplannen zal dit een A label worden)
*english
Located within walking distance of the Gaasperplas lake, this sleek and modern 3-room apartment of approximately 76m² features a sunny balcony, storage unit, and private parking space in the nearby secure parking garage! The leasehold has been bought off in perpetuity!
Location:
The apartment complex is nestled in the greenery along the Gaasperplas lake, and Amsterdam's city center is just a short distance away. The Nellestein neighborhood is almost entirely surrounded by the Gaasperplas lake and Gaasperpark. Because this complex borders the Gaasperplas lake almost directly, you can enjoy a wide range of recreational activities every day. There's a small marina, a water sports club, and a sandy beach. Furthermore, all conceivable amenities, such as shops, schools, childcare, a community center, and a health center, are within easy reach. The car-free atmosphere and numerous playgrounds make the neighborhood child-friendly. Are you a cycling enthusiast? The foothills of the Gooi region are just a short bike ride away.
Nellestein is also ideally located for those who frequently travel by car. The A1, A2, A9, and A10 highways are easily accessible from a private parking space in a covered parking garage. Public transport is also well-organized and within walking distance (bus and metro). The metro provides quick access to Amsterdam's city center, and Bijlmer Arena train station is also easily accessible by bus.
Lay-out:
Ground floor:
Shared and neat entrance with mailboxes, doorbell panel, elevator, and staircase.
Third floor:
Entrance through the wide hall with video intercom and meter cupboard. The hall provides access to almost all rooms.
The living room features large windows that provide abundant natural light. The living room opens onto the semi-open U-shaped kitchen. The kitchen is modern, finished with ceramic countertops, and equipped with all modern appliances, including a convenient Quooker, Bosch combi oven, Bosch induction cooktop, Bosch designer extractor hood, Siemens refrigerator, freezer, and Siemens dishwasher. The living room opens onto the south-facing balcony at the rear of the apartment. Enjoy a snack and/or drink in the sunshine from early morning until late afternoon!
At the front of the apartment, the hall provides access to two well-sized bedrooms, the bathroom, and a toilet. The bathroom is practically laid out and finished to a high standard. It features a walk-in shower with both a rain shower and a hand shower, a wide vanity with two mixer taps, a mirror with LED lighting, and a laundry area with connections for a washing machine and dryer. The toilet area has the same modern and timeless style and features a wall-hung toilet with a hand basin. The continuous PVC flooring, a comprehensive distribution board, a water softener, new overlay doors with black hardware, and plastered walls and ceilings complete this apartment.
In short, this is a home where you can just unpack your boxes and move in!
Storage and parking:
On the ground floor of the complex is a private storage unit of approximately 4m². Ideal for storing belongings or bicycles. A private parking space, number 136, is located on the entrance level of the nearby, secure parking garage.
Details:
• Built in 1980
• Living area approx. 76 m²
• Located on the 3rd floor
• Modern bathroom and toilet with luxury fixtures
• Luxury kitchen with A-grade appliances
• Plastered and painted walls and ceilings
• Beautiful rebated doors with black hardware
• Ground rent redeemed in perpetuity
• Private parking space on the entrance level of the parking garage
• Private storage unit in the basement
• Elevator and video intercom available
• Heating and hot water via central heating boiler; Intergas, built in 2011
• South-facing balcony
• Conveniently located in the neighborhood near the Gaasperplas
• Professionally managed homeowners' association
• Apartment service costs €307.57 per month and parking space €22.47 per month
• The purchase agreement will be signed by a notary (NVA)
• Non-owner-occupancy clause applies
• Energy label C (currently a low C label (almost B), but will be an A label after the sustainability plans)