Beschrijving
****Prefer English? – Scroll down!****
Ruim (ca 110m2) en licht 3-kamer HOEK appartement met energielabel A+ en een eigen parkeerplaats. De erfpacht is eeuwigdurend afgekocht en de ligging is zeer praktisch nabij winkels en de metro richting de stad!
Het appartement is gelegen bij het winkelcentrum Ganzenpoort, waar je van alle gemakken bent voorzien. Bij de AH, toko's en de wekelijkse markt kan je de boodschappen doen. Metrolijn 53 brengt je met 15 min in 't hart van Amsterdam.
Als je zin hebt in een wandeling loopt je zo de Bijlmerweide of het Diemerbos in. De kinderboerderij, apotheek, huisarts en het UMC is nabij. Tevens zijn de belangrijke uitvalswegen goed en snel te bereiken (A1,A2, A9, A10). Recreatiegebied Gaasperplas is ook populair bij de bewoners. Verder niet te vergeten het entertainment gebied om de Johan Cruijff ArenA met de Ziggo Dome, Pathé bioscoop, winkelcentrum de Amsterdamse Poort en de woonboulevard Villa Arena.
Heeft u trek in een lekker hapje, dan is er genoeg keuze aan restaurants op loopafstand in de nabije omgeving. Kortom wil je in modern en ruim appartement wonen, met alle faciliteiten nabij, neem dan contact met de makelaar op voor een bezichtiging.
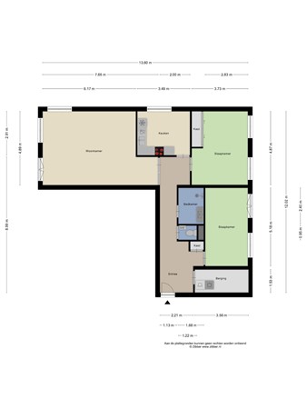
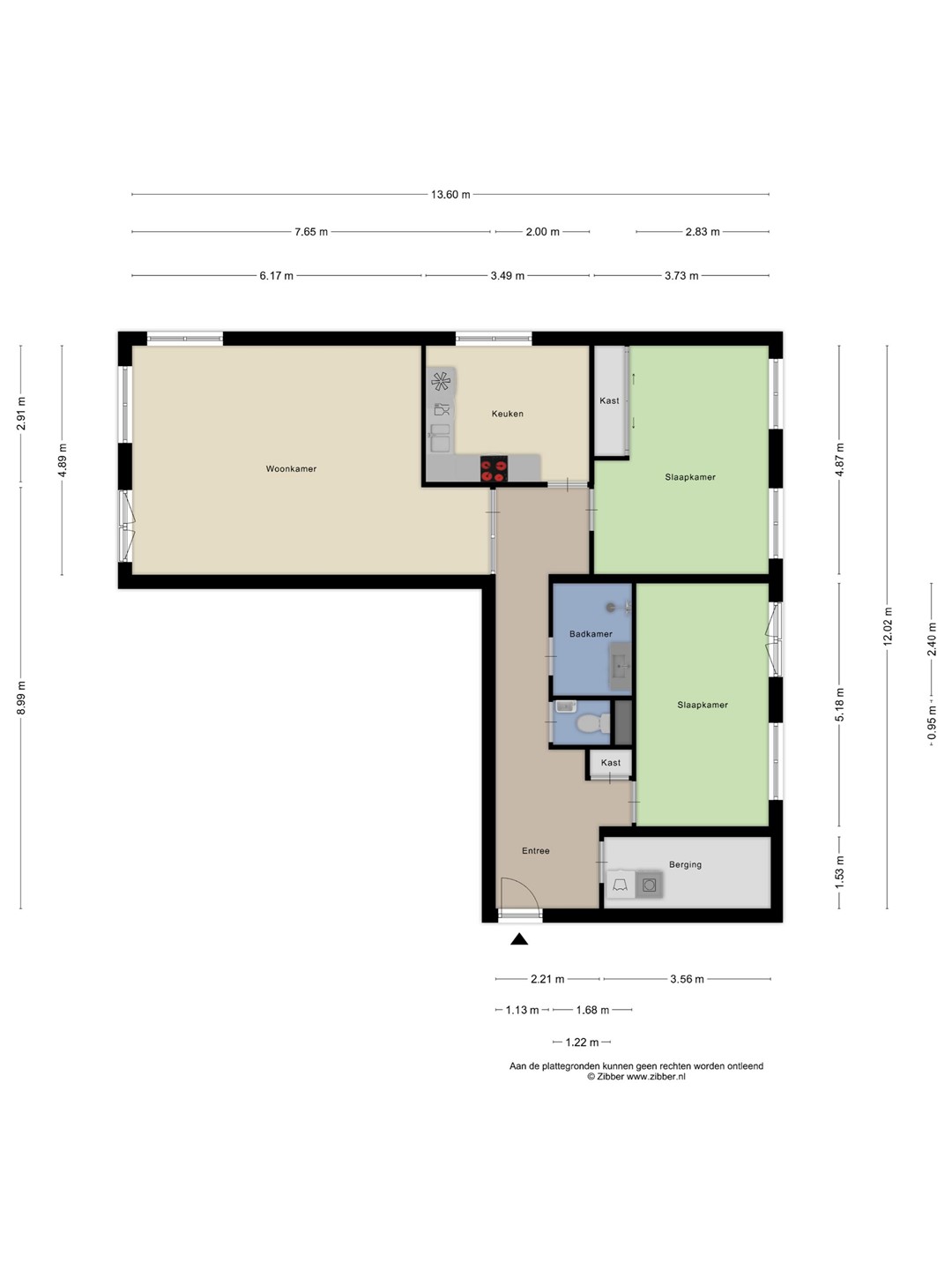
Indeling
Het gebouw is in 2002 gebouwd en is voorzien van houten kozijnen met HR++ beglazing en stadsverwarming.
Met de lift naar de 2e Verdieping. Entree, riante hal met inpandige bergruimte v.v. wasmachine / drogeropstelling en veel ruimte voor garderobe en berging.
De woning telt 2 slaapkamers gelegen aan de achterzijde van het complex. Beide zijn ruim en voorzien van veel ramen met frans balkon.
De badkamer is voorzien van douche en wastafelmeubel. De toilet is separaat.
De keuken is dicht en voorzien van diverse inbouwapparatuur. Er is ruimte om heerlijk te ontbijten aan de eettafel in de keuken.
De woonkamer is een zeer ruim en licht. Het is gelegen op het zuiden en het westen (avondzon) vanwege de ligging op de hoek. Er zijn veel ramen ook aan de zijkant van de woning (westen). Bij de openslaande deuren is er een heerlijk plek waar je van het zonnetje kan genieten. De voorzijde ligt zuidelijk dus er komt overdag veel licht binnen.
Bijzonderheden
- Energielabel A+
- De woning is voorzien van stadsverwarming (gasvrij)
- Riant 3-kamer appartement van 107,5 m2
- Erfpachtcanon is eeuwigdurend afgekocht. Nooit meer canon!
- Servicekosten: parkeerplaats (nr29) is €15,54 per maand.
- Servicekosten: woningen is €261.75 per maand.
- Nabij winkels en openbaar vervoer
- Met een kwartier in het centrum van Amsterdam
- NVA notarissen (koopakte ringmodel Amsterdam)
**english**
Spacious (approx. 110m²) and bright 3-room corner apartment with energy label A+ and a private parking space. The leasehold has been bought off in perpetuity, and the location is very convenient, close to shops and the metro to the city!
The apartment is located near the Ganzenpoort shopping center, where you'll find all the amenities you need. You can do your grocery shopping at the Albert Heijn supermarket, Asian supermarkets, and the weekly market. Metro line 53 takes you to the heart of Amsterdam in 15 minutes.
If you fancy a walk, you can easily reach the Bijlmerweide or Diemerbos. The petting zoo, pharmacy, GP, and the University Medical Center (UMC) are all nearby. Major highways (A1, A2, A9, and A10) are also easily and quickly accessible. The Gaasperplas recreation area is also popular with residents. And don't forget the entertainment district around the Johan Cruijff Arena with the Ziggo Dome, Pathé cinema, the Amsterdamse Poort shopping center, and the Villa Arena residential boulevard.
If you're in the mood for a tasty bite to eat, there's plenty of choice of restaurants within walking distance in the surrounding area. In short, if you'd like to live in a modern and spacious apartment with all amenities nearby, please contact the agent to schedule a viewing.
Lay-out:
The building was constructed in 2002 and features wooden window frames with HR++ glazing and district heating.
Take the elevator to the second floor. Entrance hall with integrated storage space including a washer/dryer setup and ample space for a wardrobe and storage.
The house has two bedrooms located at the rear of the complex. Both are spacious and feature many windows with a French balcony.
The bathroom has a shower and vanity. The toilet is separate.
The kitchen is closed and equipped with various built-in appliances. There's plenty of room for a delicious breakfast at the dining table in the kitchen.
The living room is very spacious and bright. It faces south and west (evening sun) due to its corner location. There are also many windows on the west side of the house. The French doors offer a lovely spot to enjoy the sunshine. The front of the house faces south, so plenty of natural light enters during the day.
Particularities:
- Energy label A+
- The property has district heating (gas-free)
- Spacious 3-room apartment of 107.5 m²
- Ground rent has been bought off in perpetuity. No more ground rent!
- Service charges: parking space (no. 29) are €15.54 per month.
- Service charges: housing is €261.75 per month.
- Close to shops and public transport
- 15 minutes from Amsterdam city center
- NVA notaries (purchase agreement ring model Amsterdam)