Beschrijving
*english see below
Luxe afgewerkte eengezinswoning (ca110m2), vloerverwarming, 4 a 5 slaapkamers, uitbouwmogelijkheden, energielabel B en tuin op het zuiden. Dit alles op loopafstand van de prachtige "Gaasperplas" met park en strand.
De woning is gelegen in de geliefde kindvriendelijke wijk 'Gein3dorp'. De ligging is ideaal. Rustig wonen in de natuur, maar wel snel bij de stad en vele voorzieningen. Denk aan scholen, kinderdagverblijven, sportverenigingen en winkelcentra.
De snelwegen (A9, A1, A2 en A10) zijn snel te bereiken. Openbaar vervoer is goed geregeld. Voor uw auto is er voldoende parkeergelegenheid in de straat. Het is nu nog gratis. Dit jaar zal er een vergunning kunnen worden aangevraagd, zonder wachttijd en tegen een laag tarief.
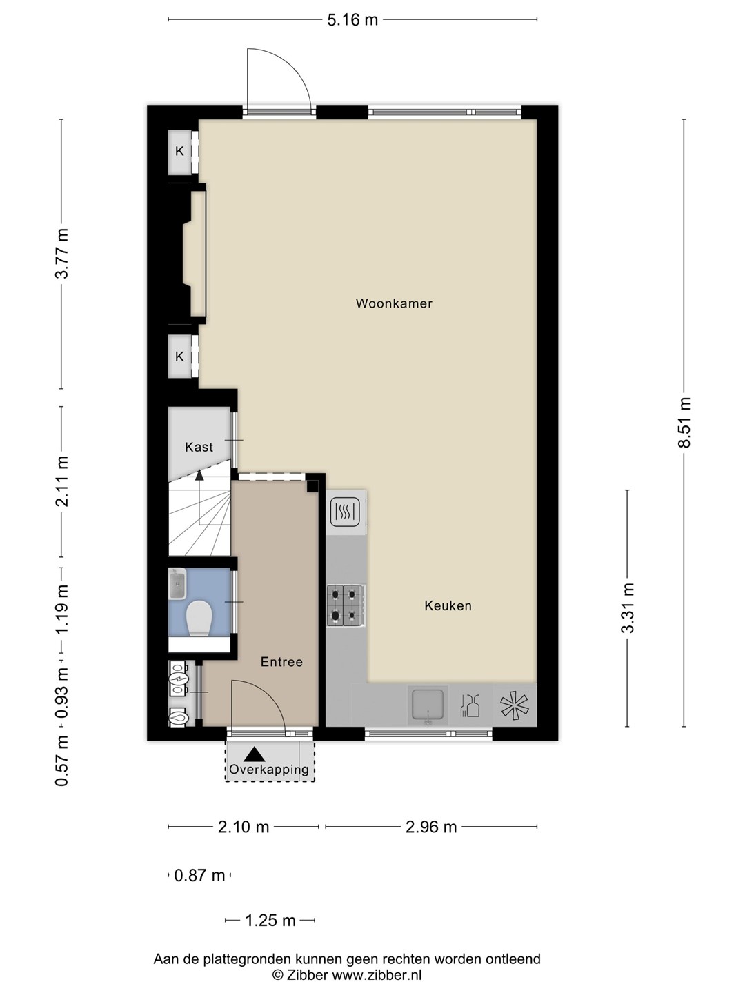
Indeling
Heerlijk zo'n woning waar je zo in kan trekken. Bij binnenkomst zie je meteen de luxe afwerking. Er is gekozen voor een mooie marmerlook tegel voorzien van vloerverwarming. De cinema-wall met sfeerhaard en verlichting is een echte eye-catcher en geeft veel sfeer. De muren en plafonds zijn gladgestuct en zien er strak uit.
De ruime keuken ligt aan de voorzijde van de woning en kijkt uit op de straat. De keuken is eind 2023 gekocht bij Brugman keukens en er zit nog garantie op.
Het is voorzien van diverse inbouwapparatuur: koelkast met 3 ladevriezer, combi-oven, magnetron, 4-pits gas, heetwaterkraan (Aqua), vaatwasser en afzuigkap.
De achtertuin ligt op het zuiden in is voorzien van een vrijstaande schuur en een achterom. Je zou hier desgewenst vergunningsvrij mogen uitbouwen.
Eerste verdieping
Via de luxe afgewerkte trap (Pro Stairs) met verlichting kom je op de eerste etage. Hier zijn 3 slaapkamers te vinden (voorzien van elektrische vloerverwarming) en een luxe badkamer.
De badkamer is voorzien van een ruime inloopdouche met nisje, tweede toilet met bidetdouche, elektrische vloerverwarming en een wastafelmeubel met spiegel.
Tweede verdieping
Dit is een ruime zolder met veel mogelijkheden. Er is een wasmachine-aansluiting en de cv ketel is daar gesitueerd.
Je zou deze ruimte kunnen vergroten middels dakkapellen. Het is mogelijk om 2 slaapkamers te creëren.
Bijzonderheden
- Energielabel B
- Kant- en klare moderne woning
- Geen auto's voor de deur (kindvriendelijk)
- Meterkast voorzien van waterontharder (Remon, 2024)
- Dakkapellen op zolder mogelijk (vergunning aanvragen bij gemeente)
- Overkapping/aanbouw mogelijk in achtertuin
- Achtertuin op het zuiden
- Erfpacht afgekocht t/m 15-04-2036; Algemene erfpachtbepalingen 1966
- notaris nva notaris (koopakte Amsterdams ringmodel)
*english*
Luxuriously finished family home (approx. 110m²), with underfloor heating, 4 to 5 bedrooms, expansion options, energy label B, and a south-facing garden. All within walking distance of the beautiful "Gaasperplas" lake with its park and beach.
The house is located in the popular, child-friendly "Gein3dorp" neighborhood. The location is ideal. Peaceful living surrounded by nature, yet close to the city and its many amenities, including schools, daycare centers, sports clubs, and shopping centers.
The highways (A9, A1, A2, and A10) are easily accessible. Public transport is well-organized. Ample parking is available on the street, currently free. This year, permit applications will be available with no waiting time and at a reduced rate.
Layout:
This is a wonderful home, ready to move into. Upon entering, you'll immediately notice the luxurious finishes. Beautiful marble-look tiles have been chosen, complete with underfloor heating. The cinema wall with a decorative fireplace and lighting is a real eye-catcher and creates a wonderful ambiance. The walls and ceilings are smoothly plastered and have a sleek, modern look.
The spacious kitchen is located at the front of the house and overlooks the street. The kitchen was purchased from Brugman Kitchens at the end of 2023 and is still under warranty.
It is equipped with various built-in appliances: a refrigerator with a 3-drawer freezer, a combination oven, microwave, 4-burner gas stove, hot water tap (Aqua), dishwasher, and extractor hood.
The south-facing backyard features a detached shed and rear access. If desired, you could extend it without a permit.
First floor:
The luxuriously finished staircase (Pro Stairs) with lighting leads to the first floor. Here you'll find three bedrooms (equipped with electric underfloor heating) and a luxurious bathroom.
The bathroom features a spacious walk-in shower with a niche, a second toilet with a bidet shower, electric underfloor heating, and a vanity with a mirror.
Second floor:
This is a spacious attic with many possibilities. There's a washing machine connection and the central heating boiler is located there.
This space could be expanded with dormer windows. It's also possible to create two bedrooms.
Particularities:
- Energy label B
- Move-in ready modern home
- No cars in front of the house (child-friendly)
- Meter cupboard equipped with water softener (Remon, 2024)
- Dormer windows possible in the attic (permit required from the municipality)
- Canopy/extension possible in the backyard
- South-facing backyard
- Leasehold bought off until April 15, 2036; General Leasehold Provisions 1966
- Notary: NVA notary (purchase agreement Amsterdam ring model)