Description
Spacious corner house (approx. 130 m²), built in 2006, with 4 to 5 bedrooms, a garden, a roof terrace, solar panels, energy label A, and a perpetual leasehold!
Property Description and Location
This bright corner house with a roof terrace is spread over three floors and boasts a spacious, open layout, surrounded by greenery. From the roof terrace, you have unobstructed views of the entire neighborhood. At the front, the kitchen and the upstairs rooms overlook a wide green area; at the front, the house overlooks a public garden.
Thanks to the upright walls, large windows, and corner location, the house is exceptionally spacious, bright, and sunny. The house currently has four bedrooms, with the possibility of creating a fifth. Because it is a corner house, the garden is partially situated at the front, side, and rear of the house.
Layout
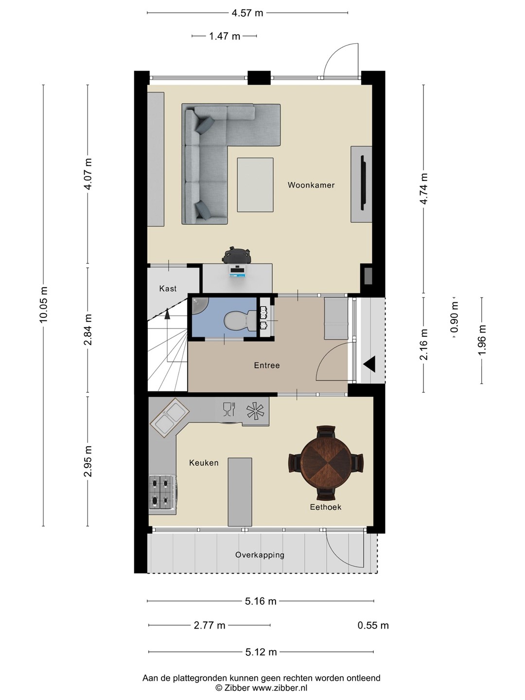
Ground floor
Covered entrance, spacious hall with meter cupboard and toilet with hand basin. The living room is on the right and the kitchen on the left.
The garden-facing living room features oak flooring and a practical under-stairs cupboard. The west-facing back garden allows you to enjoy the evening sun in the summer. For those who prefer shade, there is an electric awning. The garden also features a detached shed and rear access.
The closed-plan kitchen/diner is located at the front of the house and is equipped with a hob (gas stove with electric oven), extractor hood, double stainless steel sink with mixer tap, water heater, microwave, fully integrated dishwasher, fridge-freezer, and a granite countertop. All kitchen appliances are Bosch and Solitaire. The kitchen provides access to the front garden.
First floor
First floor
This floor has three bedrooms and a bathroom. Two bedrooms are located at the rear, and a spacious bedroom with many windows is located at the front. This room can be divided into two sections to create an additional bedroom.
The spacious bathroom features underfloor heating, a sink, a second toilet, a heated towel rail, a bathtub, and a shower with thermostatic mixer taps.
Second floor
Second floor
In addition to the generous roof terrace, this floor features a spacious bedroom with large windows and a generously sized storage room with a combination central heating boiler (Intergas, built in 2025), a heat recovery system (built in 2006), and connections for a washing machine and dryer (with dual electrical and water drains).
The sunny west-facing roof terrace is equipped with a privacy screen, wind screens, and hardwood decking. A wonderful spot for sun worshippers. It is possible to create an additional room on this floor.
Details
Details
• Year of construction: 2006
• Living area: approx. 130 m²
• Ground rent bought off in perpetuity
• 8 solar panels (2024)
• Energy label A
• Bathroom underfloor heating unit overhauled in 2015 (new pump and thermostat control)
• Central heating boiler connected to a wireless thermostat; heating can be controlled per room
• Living room and children's bedrooms equipped with thermostatic radiator valves
• Bathroom ventilation individually controlled with an additional switch/timer
• Luxury interior doors between the living room and kitchen (kitchen door with glass)
• Front and back gardens equipped with outdoor taps with lockable wall-mounted basins
• Double splash-proof external wall socket on the gable (switchable)
• Meter cupboard with 3-phase connection (400V); kitchen prepared for fully electric cooking
• Wooden shed in the backyard, equipped with electricity
• Child-friendly neighborhood with ample play opportunities (two playgrounds nearby)
• Ample parking in the immediate vicinity (two parking bays at the front)
• Parking permits are available at a reduced rate without a waiting period; a second permit is available, and visitors receive a discount
• Various amenities are nearby, including public transport, major roads, shops, schools, recreation areas (Gaasperpark/Gaasperplas, Bijlmerweide, Nelson Mandela Park), and cultural and entertainment venues such as the Bijlmer Parktheater and Pathé cinema