Beschrijving

****Prefer English? – Scroll down!****
Unieke drive-inwoning (ca141m2) met een inpandige garage, parkeren op eigen erf, slaapkamer met badkamer op de begane grond, riante achtertuin gelegen op het zuiden en 9 zonnepanelen. Energielabel A!

*Erfpacht is eeuwigdurend afgekocht
*Metro richting centraal station en isolatorweg is 8 minuten lopen
*Praktijk aan huis of verhuur van studio op de begane grond is mogelijk

Parkhof is een kleinschalig wijkje dat rustig doch centraal van winkels, scholen en openbaar vervoer ligt. Deze woning ligt bijzonder mooi aan een groenstrook met een waterpartij. Kinderen kunnen heerlijk voor de deur voetballen. 

De woning ligt nabij het winkelcentrum Reigersbos met de gezellige wekelijks markt op woensdag. De metro, het openbaar vervoer, de uitvalswegen en voortgezet onderwijs liggen zeer gunstig ten opzichte van deze woning.

Indeling

De woning heeft een grote voortuin waar nu plek is voor 1 auto. In de garage is er ook plek voor een auto. De boom in de voortuin zou kunnen worden verwijderd waardoor er 2 auto's op het erf kunnen parkeren.

Via de voordeur kom je in de hal (voorzien van handige trapkast, toiletruimte en meterkast), die toegang biedt tot de inpandige garage en de tuinkamer.  
Deze ruimtes bieden veel mogelijkheden. De garage zou ook tot woonruimte omgetoverd kunnen worden. Denk aan een extra kamer, studio om te verhuren of een praktijk aan huis. De garage is nu in gebruik als berging en is voorzien van een geïsoleerde garagedeur, wateraansluiting, voorbereiding voor afvoer en verwarming.

De tuinkamer kan een fijne slaapkamer zijn met badkamer en-suite. Bij de tuinkamer is nu namelijk al een eenvoudige badkamer voorzien van  douche en wasmachineaansluiting. 

Vanuit deze kamer kijk je prachtig weg op de tuin. De grote achtertuin is circa 13 meter diep, ligt op het zuiden en is voorzien van mooie beplanting en bomen (perenboom, kersenboom en een pruimenboom. Heerlijk toch!

Aan de achterzijde van de tuin ligt het spoor van de metrolijn. Die is dus zichtbaar en hoorbaar en rijdt overdag om het kwartier. Het is goed om hier rekening mee te houden.

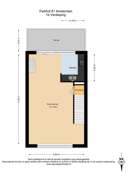
Eerste verdieping

Via de trap kom je op de eerste verdieping bij de woonkamer. Deze ruimte heeft grote ramen en is daardoor heel licht. Op de vloer ligt een massief grenen houten vloer. Deze zou mogelijk kunnen worden opgeschuurd, zodat het er weer als nieuw uit ziet. De keuken ligt aan de achterzijde van de woning. Via de schuifpui is het terras met uitzicht op de tuin te bereiken.

Tweede verdieping

Deze etage is voorzien van 3 slaapkamers, inpandige berging (cv ketel, 2024, eigendom) en de badkamer (ligbad, wastafel, raam, en tweede toilet). Op de hal is een lichtkoepel wat zorgt voor een extra mooie lichtinval.

Op het dak liggen 9 zonnepanelen en de woning heeft een A label. De ramen zijn voorzien van dubbel glas. De energiekosten zijn laag.

Bijzonderheden

- Bouwjaar 1993
- Energielabel A

- Woonoppervlakte ca. 141 m2 (inclusief garage)
- Woonoppervlakte ca 123 m2 (exclusief garage)

- Zonnige tuin op het zuiden
- Parkeren op eigen erf en in de garage 
- bezoekers kunnen met korting parkeren

- Erfpacht eeuwigdurend afgekocht

- Metrospoor ligt pal achter de tuin. Deze is hoorbaar en zichtbaar
- Praktijk aan huis is mogelijk
- Slaapkamer op de begane grond

- Raam lek schuifpui
- Woning kan naar eigen smaak gemoderniseerd worden
- CV-ketel is vernieuwd in 2024



 “Voor meer informatie, bezoek parkhof81.nl.”

**english**

Unique drive-in home (approx. 141 m²) with an integrated garage, parking on private property, a bedroom with bathroom on the ground floor, a spacious south-facing backyard, and 9 solar panels. Energy label A!

*Ground lease has been bought out in perpetuity
*Metro towards Central Station and Isolatorweg is an 8-minute walk
*Home practice or rental of a studio on the ground floor is possible

Parkhof is a small neighborhood situated quietly yet centrally located near shops, schools, and public transport. This home is situated in a particularly beautiful location next to a green strip with a water feature. Children can enjoy playing football right outside the door.

The home is located near the Reigersbos shopping center with its lively weekly market on Wednesdays. The metro, public transport, arterial roads, and secondary education are very conveniently located in relation to this home.

Lay-out:

The property features a large front garden that currently accommodates one car. There is also space for a car in the garage. The tree in the front garden could be removed, allowing two cars to park on the property.

Through the front door, you enter the hallway (equipped with a convenient stair cupboard, toilet, and meter cupboard), which provides access to the integrated garage and the garden room.

These spaces offer many possibilities. The garage could also be converted into living space. Think of an extra room, a studio for rent, or a home-based practice. The garage is currently used as storage and is equipped with an insulated garage door, a water connection, and preparation for drainage and heating.

The garden room could be a pleasant bedroom with an en-suite bathroom. The garden room currently features a simple bathroom equipped with a shower and washing machine connection.

From this room, you have a beautiful view of the garden. The large backyard is approximately 13 meters deep, faces south, and features beautiful plants and trees (a pear tree, a cherry tree, and a plum tree). Lovely, isn't it!

The metro line runs along the rear of the garden. It is therefore visible and audible, and runs every fifteen minutes during the day. It is good to take this into account.

First floor:

Via the stairs, you reach the living room on the first floor. This room has large windows and is therefore very bright. The floor is covered with solid pine wood. This could possibly be sanded down to make it look like new again. The kitchen is located at the rear of the house. The terrace, overlooking the garden, can be reached via the sliding doors.

Second floor:

This floor features 3 bedrooms, an internal storage room (central heating boiler, 2024, owned), and the bathroom (bathtub, sink, window, and second toilet). There is a skylight in the hallway, providing beautiful natural light.

There are 9 solar panels on the roof, and the home has an A label. The windows are double-glazed. Energy costs are low.

Particularities:

- Year of construction 1993
- Energy label A

- Living area approx. 141 m2 (including garage)

- Living area approx. 123 m2 (excluding garage)

- Sunny south-facing garden

- Parking on private property and in the garage

- Visitors can park at a discount

- Perpetual leasehold redeemed

- Metro track is located directly behind the garden. It is audible and visible
- Home-based practice possible
- Bedroom on the ground floor

- Window leaking sliding door
- Property can be modernized to your own taste
- Central heating boiler was renewed in 2024

Kenmerken