Beschrijving

****Prefer English? – Scroll down!****
Riante eengezinswoning (2002, ca152m2) met 3 woonlagen, 4 slaapkamers, ruim dakterras (ca45m2), inpandige garage en kindvriendelijke ligging. Centraal gelegen en op korte afstand van het centrum van Amsterdam.

*energielabel A
*eeuwigdurend afgekochte erfpacht
* uitbouwmogelijkheden (dakkapel)

Deze woning is rustig gelegen aan een autovrij groen hofje met een speelplaats voor kinderen. Het huis ligt op loopafstand van het winkelcentrum "Amsterdamse Poort". Dit gebied is momenteel volop in ontwikkeling en er wordt flink geïnvesteerd in nieuwe panden, woningen en kantoren.

Het Arenagebied bruist van culturele voorzieningen. Denk aan de Pathé arena, Ziggo, AFAS LIVE en de Johan Cruyff Arena.

Er is direct toegang tot diverse uitvalswegen, die binnen enkele minuten toegang geven tot A2, A1, A9 en A10 (Ringweg). Met de auto of het openbaar vervoer is het het centrum van Amsterdam snel bereikbaar. Tevens heb je prachtige fietsroutes naar het pittoreske centrum van Ouderkerk a/d Amstel en Abcoude.

Indeling

Begane grond:
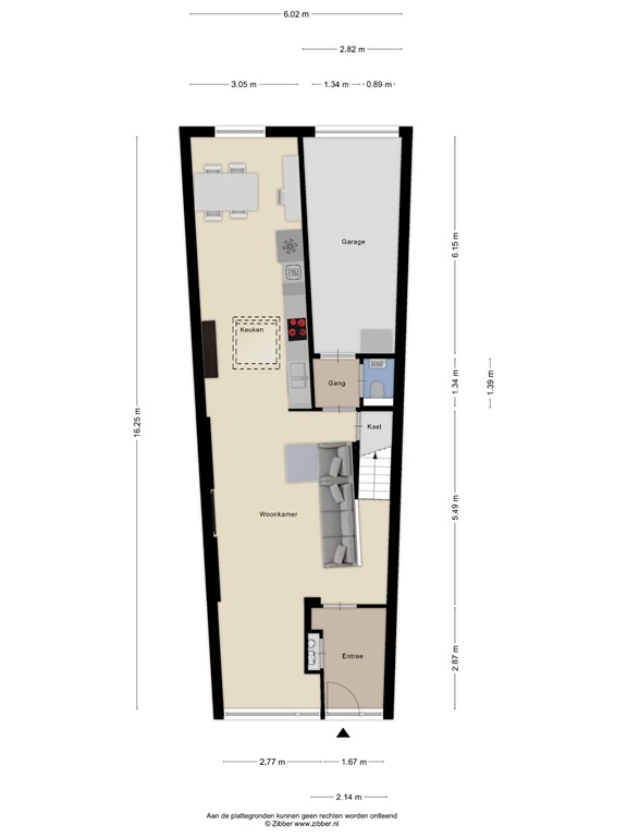
Via de voortuin kom je bij de entree van de woning. De hal is voorzien van meterkast met stadsverwarmings-unit. De woonkamer is voorzien van een mooie warme houten vloer en een gezellige zithoek voorzien van cinema Wall. Waar je heerlijk kan ontspannen.

De keuken is voorzien van diverse inbouwapparatuur en een lichtkoepel. Er is voldoende ruimte voor een eettafel.

Via de woonkamer is er toegang tot de inpandige garage, voorzien van elektrische garagedeur. De garage is bereikbaar vanuit de afgesloten binnenstraat.

Op de begane grond is tevens een toiletruimte en een inpandige berging.

Eerste verdieping

Deze etage is voorzien van 2 slaapkamers en een badkamer. De slaapkamer aan de achterzijde biedt toegang tot het zonnige dakterras gelegen op het westen.
De slaapkamer aan de voorzijde is voorzien van een frans balkon en een schuifpui met uitzicht op groen.

De badkamer is voorzien van douche, dubbele wastafelmeubel en een 2de toilet.

Tweede verdieping

Deze verdieping heeft een ruime slaapkamer voorzien van frans balkon met schuifpui en uitzicht op het groene hofje. Tevens is er een ruimte voorzien van wasmachine-aansluiting, mechanische ventilatie en berging.

Op deze verdieping zou een extra slaapkamer gerealiseerd kunnen worden door middel van een dakkapel.

Bijzonderheden

- Inpandige garage
- Bouwjaar 2002
- Erfpachtcanon eeuwigdurend afgekocht
- Indicatie woonoppervlakte 136m2 plus 16m2 garage 
- Riant dakterras ca. 46 m² 
- Appartementsrecht met V.v.E-bijdrage van € 192,-  p/m, alle onderhoud van gevels, daken en kozijnen etc. is voor rekening van V.v.E.
- Stadsverwarming (geen gas) 
- Energielabel A
- Uitzicht op groen park
- niet-zelfbewoningsclausule is van toepassing

*english

Spacious family home (2002, approx. 152m²) with 3 floors, 4 bedrooms, a large roof terrace (approx. 45m²), an integral garage, and a child-friendly location. Centrally located and a short distance from Amsterdam's city center.

*Energy label A
*Perpetual leasehold
*Expansion possibilities (dormer window)

This home is quietly situated on a car-free green courtyard with a children's playground. The house is within walking distance of the "Amsterdamse Poort" shopping center. This area is currently undergoing significant development, with significant investments being made in new buildings, homes, and offices.

The Arena area is brimming with cultural amenities, including the Pathé Arena, Ziggo, AFAS Live, and the Johan Cruyff Arena.

There is direct access to various highways, providing access to the A2, A1, A9, and A10 (Ring Road) within minutes. Amsterdam's city center is easily accessible by car or public transport. You also have beautiful cycling routes to the picturesque centre of Ouderkerk a/d Amstel and Abcoude.

Lay-out:
Ground floor:
The front garden leads to the entrance of the house. The hall features a meter cupboard with a district heating unit. The living room features beautiful, warm wooden flooring and a cozy sitting area with a cinema wall, perfect for relaxing.

The kitchen is equipped with various built-in appliances and a skylight. There's ample space for a dining table.

The living room provides access to the integral garage, which has an electric door. The garage is accessible from the enclosed courtyard.

The ground floor also includes a toilet and a storage room.

First floor:

This floor has two bedrooms and a bathroom. The bedroom at the rear provides access to the sunny west-facing roof terrace.
The bedroom at the front has a French balcony and sliding doors overlooking greenery.

The bathroom has a shower, double vanity, and a second toilet.

Second floor

This floor features a spacious bedroom with a French balcony and sliding doors overlooking the green courtyard. There is also a utility room with a washing machine connection, mechanical ventilation, and storage.

An additional bedroom could be created on this floor with a dormer window.

Particularities:
- Integrated garage
- Built in 2002
- Ground rent redeemed in perpetuity
- Estimated living area: 136m² plus 16m² garage
- Spacious roof terrace of approx. 46 m²
- Apartment rights with a homeowners' association (VvE) fee of €192 per month; all maintenance of facades, roofs, window frames, etc. is the responsibility of the VvE.
- District heating (no gas)
- Energy label A
- View of a green park
- non-occupancy clause applies

Kenmerken