Beschrijving

*english see below
VZmakelaars biedt een gunstig gelegen 2 kamer appartement (ca52m2) aan voorzien van nieuwe kozijnen en HR++ ramen (2014) en een zonnig gelegen balkon met uitzicht op het park. 

De ligging is mooi en praktisch, midden in het groene en fleurige J. van Stigtpark en op 2 min loopafstand van metrostation Ganzenhoef. Metrolijn 53 brengt je met 15 minuten in het bruisende centrum van Amsterdam! Verder stopt bus 66 (IJburg en station Bijlmer Arena) en bus 41 (station Holendrecht en Amstel station) voor de deur. Ideale verbinding dus!

Dit appartementencomplex is gelegen in de G-buurt van Amsterdam Zuidoost, grenzend aan het mooie natuurgebied de Bijlmerweide en heeft sinds kort de status van een gemeentelijk monument. Genoeg mogelijkheden om heerlijk te wandelen in de natuur, want het Diemerbos en de Gaasperplas liggen ook in de nabije omgeving. De bereikbaarheid is prima. De A-9, A-2, A-1 en A-10 zijn snel te bereiken en het grote winkelcentrum "de Amsterdamse Poort" met aansluitend het Arenagebied (Pathe bioscoop, AFAS live en de Ziggo Dome) zijn snel te bereiken. Op loopafstand is winkelcentrum Ganzenpoort te bereiken waar u terecht kunt voor de dagelijkse boodschappen en de wekelijkse markt.  

“Voor meer informatie, bezoek goudenleeuw222.nl.”

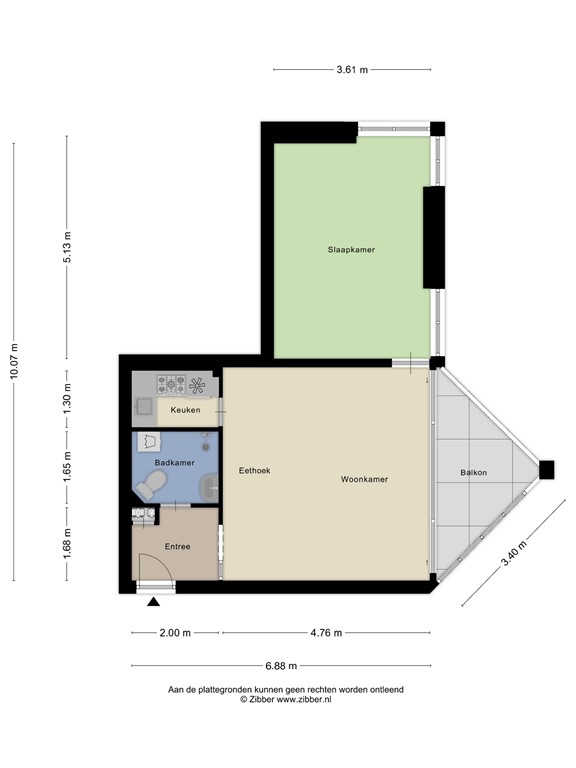
Indeling

Via de hoofdingang ben je snel bij toren 2 en vanuit het park is er ook een ingang. De woning ligt op de 4de verdieping.

Zodra je het appartement binnenkomt zie je een knusse woonkamer met veel licht door de grote ramen. Deze ramen zijn in 2014 vervangen voor HR++ beglazing. 

De woonkamer is voorzien van een half open keuken. Hier is ruimte voor een moderne keuken naar eigen keuze. Via de vernieuwde schuifpui (2014) kom je op het knusse balkon met prachtig uitzicht op het groenrijke park. Het balkon is gelegen op het zuidwesten. Hier kan je heerlijk van het avondzonnetje genieten.

De slaapkamer is goed bemeten en voorzien van veel ramen. Je zou er een extra kamer kunnen creëren door het plaatsen van een muur.

De badkamer is voorzien van een douche, wastafel, toilet en wasmachine-aansluiting.

Op de begane grond is er een gemeenschappelijke berging.

Bijzonderheden

- De servicekosten bedragen € 205,81 per maand, exclusief een vooruitbetaalde stookkosten van € 68,80.

(inclusief: gebouwverzekering, liftonderhoud, groot onderhoud en de conciërge die zijn kantoor in dit complex heeft).

Dankzij de nieuwe kozijnen jaarlijks geld terug op de stookkosten!

- Woonoppervlakte ca. 52 m²

- Gunstige ligging ten opzichte van metro, ringweg en winkelcentrum.

- Dichtstbijzijnde plaatsen: Diemen (2 km), Weesp (4 km), Abcoude (7 km), Muiden (9 km).

- gemeenschappelijke berging in de kelder

- Asbest- , niet-zelfbewonings-, as is where is-, en ouderdomsclausule van toepassing

- Voortdurende erfpacht, € 151,26 betreft de periode van 1 april 2025 tot en met 31 maart 2026 (1 jaarlijkse indexering, algm. bep. 2000)
Deze kosten zijn fiscaal aftrekbaar!

Een parkeervergunning voor bewoners kost € 38,60 per 6 maanden. (geen wachttijden)

Een tweede parkeervergunning kost € 96,49 per 6 maanden.

- Gemeentelijk monument

https://www.amsterdam.nl/nieuws-zuidoost/flatgebouwen-gemeentelijk-monument/

“Voor meer informatie, bezoek goudenleeuw222.nl.”

**english**

VZmakelaars offers a conveniently located 2-room apartment (approx. 52m²) with new window frames and HR++ windows (2014) and a sunny balcony overlooking the park.

The location is beautiful and practical, right in the heart of the green and colorful J. van Stigtpark and a 2-minute walk from Ganzenhoef metro station. Metro line 53 takes you to Amsterdam's vibrant city center in 15 minutes! Bus 66 (IJburg and Bijlmer Arena station) and bus 41 (Holendrecht station and Amstel station) also stop right outside. Ideal connections!

This apartment complex is located in the G-buurt neighborhood of Amsterdam Zuidoost, bordering the beautiful Bijlmerweide nature reserve and recently designated a municipal monument. Plenty of opportunities for lovely walks in the surrounding nature, as the Diemerbos and Gaasperplas lakes are also nearby. Accessibility is excellent. The A9, A2, A1, and A10 motorways are easily accessible, as is the large Amsterdamse Poort shopping center, adjacent to the Arena area (Pathe cinema, AFAS Live, and the Ziggo Dome). The Ganzenpoort shopping center, where you can do your daily shopping and visit the weekly market, is within walking distance.

For more information, visit goudenleeuw222.nl.

Lay-out

Tower 2 is easily accessible via the main entrance, and there's also an entrance from the park. The apartment is located on the 4th floor.

Upon entering the apartment, you'll find a cozy living room bathed in natural light through the large windows. These windows were replaced with HR++ glazing in 2014.

The living room features a semi-open kitchen, offering space for a modern kitchen of your choice. Renovated sliding doors (2014) open onto a cozy balcony with a beautiful view of the green park. The southwest-facing balcony is a wonderful place to enjoy the evening sun.

The bedroom is well-sized and features many windows. A wall could be added to create an additional room.

The bathroom is equipped with a shower, sink, toilet, and washing machine connection.

There is a shared storage room on the ground floor.


Particularities:

- The service charges are €205.81 per month, excluding prepaid heating costs of €68.80.

(Includes: building insurance, elevator maintenance, major maintenance, and the caretaker's office in this complex).

Thanks to the new window frames, you'll get annual savings on your heating costs!

- Living area approx. 52 m²

- Conveniently located near the metro, ring road, and shopping center.

- Closest towns: Diemen (2 km), Weesp (4 km), Abcoude (7 km), Muiden (9 km).

- Communal storage room in the basement

- Asbestos, non-occupancy, as is where is, and age clauses apply

- Perpetual leasehold, €151.26, applies to the period from April 1, 2025, to March 31, 2026 (1 annual indexation, general 2000).

These costs are tax-deductible!

A resident parking permit costs €38.60 every six months (no waiting periods).

A second parking permit costs €96.49 every six months.

- Municipal monument

https://www.amsterdam.nl/nieuws-zuidoost/flatgebouwen-gemeentelijk-monument/

Kenmerken