Description

Wonderful living near the Gaasperplas lake! This move-in ready (ca70m2) home with energy label A and perpetual leasehold has 2 bedrooms, 2 storage units, and a private covered parking space.

Living in a park with the metro to Amsterdam city center within walking distance. Ideal!

The Nellestein neighborhood has a holiday feel; it's car-free and located in the beautiful Gaasperpark. Here you can enjoy sports, recreation, walk the dog (dog beach), and relax on the water.

Gaasperplas metro station, with metro line 53 to Central Station, is within walking distance, as is the bus stop (47). If you're traveling by car, the A9, A1, A2, and A10 highways are easily accessible.

The primary school and childcare center are within walking distance. The Kameleon shopping center for daily shopping is just a few minutes away, and the larger Reigersbos shopping center is also easily accessible.

Layout

Ground floor: entrance, letterbox and doorbell panel with camera, storage units, elevator, and staircase.

Third floor:

Entrance into the hall with the meter cupboard and coat closet.

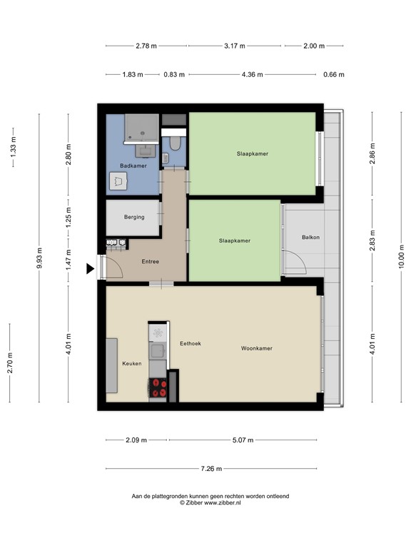
The living room is beautifully situated with a lovely view of the park. Each season offers a different ambiance. Here you can comfortably sit and there is room for a dining table. The windows have recently been replaced with HR++ glazing. The semi-open kitchen is well-equipped and the built-in appliances have recently been replaced.

There are two well-sized bedrooms, one of which opens onto the south-facing balcony. The tiled bathroom features a spacious walk-in shower, vanity, and washing machine connection.

A nice EXTRA! Diagonally across from the apartment on the same floor is an indoor storage unit that can be used as a workspace or storage space. This is in addition to the standard box on the ground floor.

In addition, this property has a private covered parking space in the secured parking garage.

Details

- Homeowners' Association (HOA) fee for apartment: €282.91, storage €49.69, parking €28.18 per month
- Central heating boiler (owned) (2010)
- Covered parking space (no. 60)
- South-facing balcony
- Height of apartment: approx. 2.60m
- Spacious storage on the ground floor and first floor
- Ground lease has been bought off in perpetuity (no more ground lease payments)!
- Energy label A
- Homeowners' Association (HOA) is fully committed to sustainability. The window frames have recently been replaced with HR++ glazing. The doors and ventilation grilles have also been replaced.
- Permanent notary: NVA notaries

Features